Et si Mugler lançait une ligne dite «pour tous» mettant en avant les personnes invalides et crérai de vêtements «reconstruisant» les corps et prônant la confiance en soi. Le luxe devient accessible à tous les corps.
> Cibler les personnes en situation d’invalidité et leur offrir une experience d’achat sensorielle qui les reconnectera avec leur enveloppe corporelle et qui par la suite leur permettra une réappropriation de leur corps par la mode.
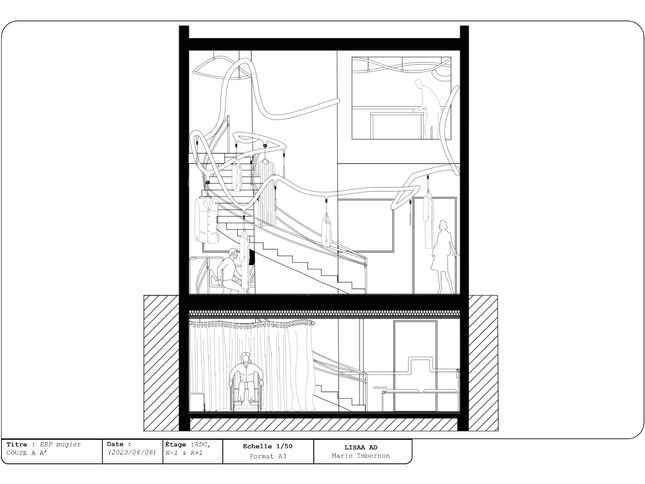
Le projet architectural s’inscrit dans la volonté de guider le client tout au long de sa visite grace à un jeu de textures et un contraste fort. La visite se veut alors sensorielle :
> panneaux muraux texturés
> chemin au revêtement adaptés aux fauteuils roulants
> géométrie orgganique
> main courante
> clouds podotactiles
Le fil rouge de la visite est une main courante, comme une ligne de vie à laquelle se fier. Le concept est repris dans le système d’accrochage accessible à tous grâce à un système d’enrouleur
> Cibler les personnes en situation d’invalidité et leur offrir une experience d’achat sensorielle qui les reconnectera avec leur enveloppe corporelle et qui par la suite leur permettra une réappropriation de leur corps par la mode.
Le projet architectural s’inscrit dans la volonté de guider le client tout au long de sa visite grace à un jeu de textures et un contraste fort. La visite se veut alors sensorielle :
> panneaux muraux texturés
> chemin au revêtement adaptés aux fauteuils roulants
> géométrie orgganique
> main courante
> clouds podotactiles
Le fil rouge de la visite est une main courante, comme une ligne de vie à laquelle se fier. Le concept est repris dans le système d’accrochage accessible à tous grâce à un système d’enrouleur
Architecture d'intérieur
Retail design
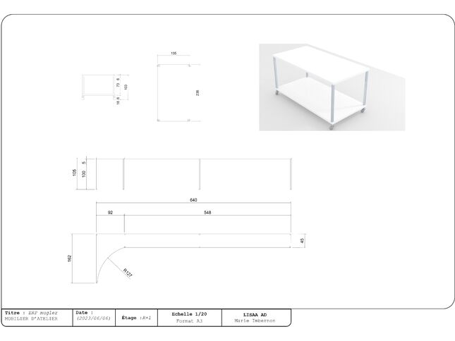
Conception de mobilier pour la boutique.
Identité visuelle